Grußwort

Grußwort von Bürgermeister Wolfgang Hörnig
Gemeinde Faulbach
01.10.2025
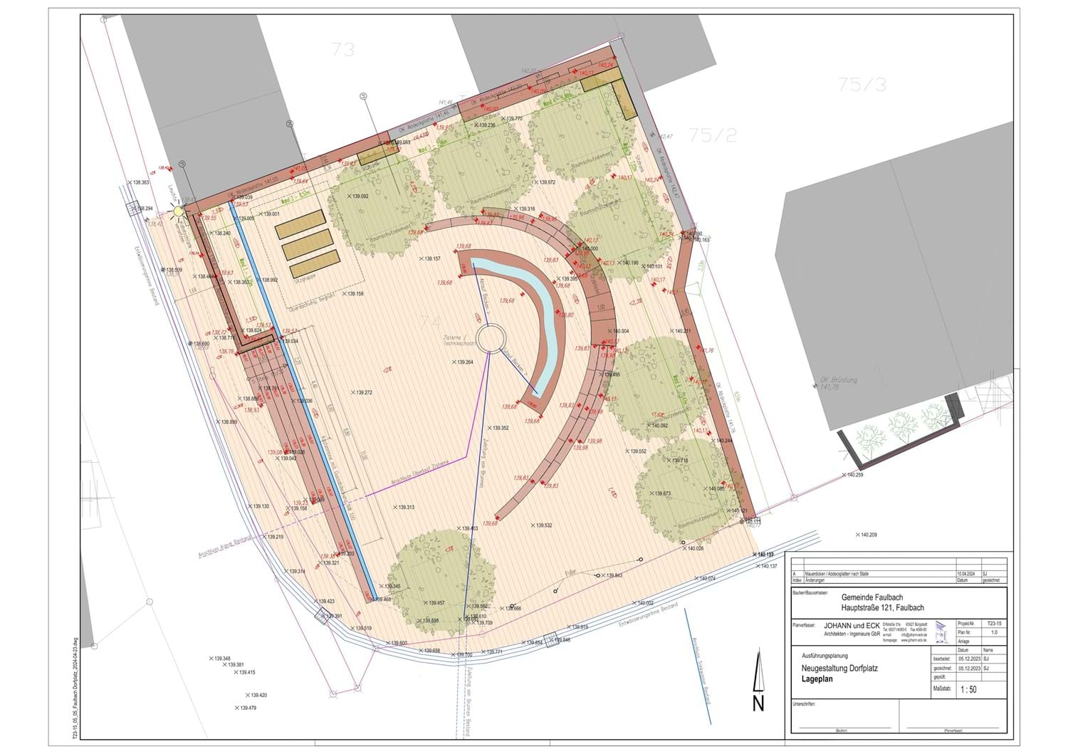
Mit dem Spatenstich am Dorfplatz haben die Arbeiten offiziell begonnen!
Am Freitag, den 26. September 2025, wurde mit dem Spatenstich am Dorfplatz der Startschuss für die Bauarbeiten gegeben und seit Montag, den 29.09.25 haben die Baumaßnahmen nun offiziell begonnen. Die voraussichtliche Fertigstellung des neu gestalteten Dorfplatzes erfolgt im Februar 2026. Bis dahin kann es während der Bauzeit rund um das Gelände zu Beeinträchtigungen kommen – wir bitten hierfür um Verständnis.
Ihre Gemeindeverwaltung
Kategorien: Die Gemeinde Faulbach informiert